Каменная горка-3 ЖСПК-958, д.8

innessa

New member
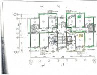
Скажите, где можно посмотреть планировку однокомнатной квартиры в нашем доме, т.е. 42,99 м2. На первой странице такого метража я не нашла.???

Вечером отсканирую и выложу.

Что за цены у вас? я из дома №6. То же МДК, та же серия. Озвучивают 4 800 000. На днях брала справку для банка у буха, там 3 925 000. Не входят сети и снос.

Стоимость на сегодня с учетом индекса роста СМР 166% .
У нас в справочках тоже пока цена 3800000. Но, это пока....
 

Юлия 0101

New member
Мы теперь тоже будем строиться с вами. Всем ПРИВЕТ!!!!! Цена конечно страшная. Сначала говорили 3700 бел. руб. в январе,а в феврале пришли за решением уже 6100. Это конечно шок. Мы-молодая семья.Детей пока нету.Кредит 31 %. 1-комнатная. Страшно подумать,как выплатить кредит. Но ещё меня удивило, что очень много отказников, и как же дом будет строиться? Мы не были ни на одном собрании. Но надеюсь,попадём туда. ЛЮДИ,УСПОКОЙТЕ,ЧТО ВСЁ БУДЕТ ХОРОШО!!!!
 

innessa

New member
Мы теперь тоже будем строиться с вами. Всем ПРИВЕТ!!!!! Цена конечно страшная. Сначала говорили 3700 бел. руб. в январе,а в феврале пришли за решением уже 6100. Это конечно шок. Мы-молодая семья.Детей пока нету.Кредит 31 %. 1-комнатная. Страшно подумать,как выплатить кредит. Но ещё меня удивило, что очень много отказников, и как же дом будет строиться? Мы не были ни на одном собрании. Но надеюсь,попадём туда. ЛЮДИ,УСПОКОЙТЕ,ЧТО ВСЁ БУДЕТ ХОРОШО!!!!
Здравствуйте!
Какой код квартиры?

Планировки.
 

Вложения

  • img010.jpg
    img010.jpg
    129.6 KB · Просмотры: 128
Последнее редактирование:

innessa

New member
Сегодня был на стройке, готово почти два этажа. На нашем доме работы не велись.Но вообще по всей КГ-3 стройка шагает, работают по выходным (на МАПИДовских домах), каждую неделю изменения заметны.
 

Maxi

New member
Мы теперь тоже будем строиться с вами. Всем ПРИВЕТ!!!!! Цена конечно страшная. Сначала говорили 3700 бел. руб. в январе,а в феврале пришли за решением уже 6100. Это конечно шок. Мы-молодая семья.Детей пока нету.Кредит 31 %. 1-комнатная.
менее 700$ не такая уж и страшная цена.
 

Julia83

New member
менее 700$ не такая уж и страшная цена.
НУ КОНЕЧНО НЕ ТАКАЯ СТРАШНАЯ, ЕСЛИ ЗАРПЛАТА 3000$ НА КАЖДОГО ЧЛЕНА СЕМЬИ!!!!!!!!!!!!!!!!!!!!!!!!!!!!!!

менее 700$ не такая уж и страшная цена.
НУ КОНЕЧНО НЕ ТАКАЯ СТРАШНАЯ, ЕСЛИ ЗАРПЛАТА 3000$ НА КАЖДОГО ЧЛЕНА СЕМЬИ!!!!!!!!!!!!!!!!!!!!!!!!!!!!!!
 

Юлия 0101

New member
менее 700$ не такая уж и страшная цена.

Ну во-первых,не менее 700, а чуть более 750. А во-вторых,говорят сначала одну цену,а потом резко в 2 раза больше. Я рада,что для Вас это не страшная цена=)
 

LisK

Active member

angel_1974

New member
innessa, может Вы знаете насколько на сегодняшний день укомплектован наш ЖСПК 958.После массового выхода членов из нашего ЖСПК пришли ли другие люди на их место
 

innessa

New member
На сегодня не заполненных порядка 30% квартир. А что люди скажут когда цена остановится ну скажем в пределах 5000000 за кв. м.
 

angel_1974

New member
innessa;6770485]На сегодня не заполненных порядка 30% квартир. А что люди скажут когда цена остановится ну скажем в пределах 5000000 за кв. м
Спасибо. А что, у Вас есть еще надежда,что цена будет меньше?Сегодня была в Советском исполкоме ,сказали что таких цен (3800000) нет,но офицального решения с Министерства архитектуры тоже у них нет.Ждут в марте -апреле.
 

Komar_e87

New member
Что вы здесь людей в заблуждение заводите? Пусть Ваш председатель по райисполкомам походит и доукомплектует ваше ЖСПК. А путать наших людей, если разница в сроках сдачи 2 месяца, я не вижу смысла. Звонили в МДК у Вашего дома проблема с оплатами и скорее всего что они будут преступать к домам у которых проблем с финансированием нет.
 

innessa

New member
Что вы здесь людей в заблуждение заводите? Пусть Ваш председатель по райисполкомам походит и доукомплектует ваше ЖСПК. А путать наших людей, если разница в сроках сдачи 2 месяца, я не вижу смысла. Звонили в МДК у Вашего дома проблема с оплатами и скорее всего что они будут преступать к домам у которых проблем с финансированием нет.

Никто никого не вводит в заблуждение, а просто информирует, что есть свободные квартиры, а зная как работают наши исполкомы, и что у них вообще нет свободных квартир по кг-3, это мы наслышаны. По поводу проблем с оплатами, а у кого их сейчас нет? И не сказала бы я, что это такие уж большие проблемы, поэтому и пытаемся всякими средствами как можно скорее укомплектовать наш дом, чтоб не было никаких проблем. :scratch:
 

tata27

New member
Подруга была сегодня в Московском исполкоме, сказали, что по нашему дому квартир нет!!! Хотят строить 1-комнатную, дайте телефон, если еще есть свободные квартиры.

Еще вопрос: дом будет с отделкой или без? И есть ли 2-хкомнатные квартиры в нашем доме?
 

mika1

New member
Здравствуйте, мы сегодня тоже были в центральном райисполкоме, и нам сказали, что уже нет у вас свободных квартир, пару дней назад, мы приходили и ещё были, да и вообще ни в каком жспк по их словам нет свободных квартир. Хотя я знаю, что отказных квартир сейчас много. Только что вышли из другого жспк, строительство которого откладывается все время на неопределенное время. Уже не знаем , что делать, сил нет. Да и еще эти райисполкомы мозги компосируют...Может кто-нибудь подскажет,что можно предпринять
 

innessa

New member
Подруга была сегодня в Московском исполкоме, сказали, что по нашему дому квартир нет!!! Хотят строить 1-комнатную, дайте телефон, если еще есть свободные квартиры.

Еще вопрос: дом будет с отделкой или без? И есть ли 2-хкомнатные квартиры в нашем доме?

2-х комнатных квартир нет. По поводу отделки то по проекту дом должен быть с отделкой, что может измениться не знаю, думаю все останется по старому. Тел. в личке.

Здравствуйте, мы сегодня тоже были в центральном райисполкоме, и нам сказали, что уже нет у вас свободных квартир, пару дней назад, мы приходили и ещё были, да и вообще ни в каком жспк по их словам нет свободных квартир. Хотя я знаю, что отказных квартир сейчас много. Только что вышли из другого жспк, строительство которого откладывается все время на неопределенное время. Уже не знаем , что делать, сил нет. Да и еще эти райисполкомы мозги компосируют...Может кто-нибудь подскажет,что можно предпринять

Квартиры есть. тел. в личке.

Сегодня разговаривали с председателям с ее слов коэф. Кптк=1, ждем официального уведомления. :yahoo::rtfm:
Хорошая информация для тех кто собирается индексировать чеки "Жилье" с 1 марта 1 чек = 48000 бел. руб.
 
Последнее редактирование:
Сверху